Berlin eh. Staatsbank der DDR
Projektdaten
Berlin, Stadtteil Mitte
bearbeitet 2004-2005
Leistungsumfang
Bauaufnahme
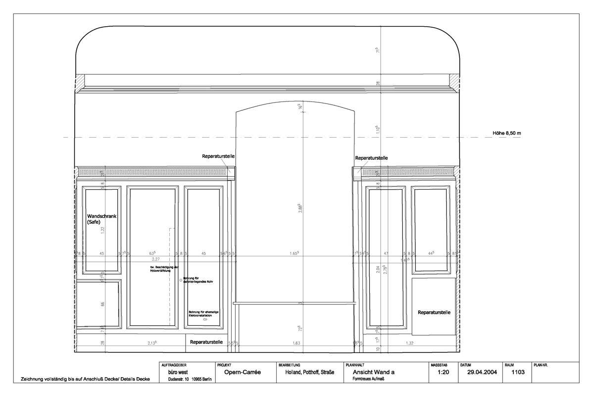
Detailaufmaße (M 1:20-1:1)
Messbilderstellung
In den Jahren 2004 und 2005 wurde eine Bauaufnahme an ausgewählten Räumen des Gebäudes der ehemaligen Staatsbank der DDR durchgeführt.
Hierbei wurden die darzustellenden Räumlichkeiten in Grundrissen, Schnitten und Ansichten gezeichnet. Sämtliche Profile wurden im Maßstab 1:1 abgenommen und auch mit diesem Informationsgehalt in die vollständig digital zur Verfügung gestellten Pläne eingearbeitet.
Zugleich wurden von hölzernen Wandverkleidungen digitale Meßbilder angefertigt, die zusammen mit Strichzeichnungen eine Arbeitsgrundlage für Schadenskartierungen sowie den Aus- und Wiedereinbau bildeten. Sämtliche Pläne wurden an das am Gebäude anliegende Vermessungsnetz angebunden.
Insgesamt wurden rund 350 Einzelpläne erstellt.












